Rada Osiedla Krzekowo-Bezrzecze

RSS

Informacje bieżące

Budowa nowego boiska coraz bliżej

Dodano: 29.03.2013

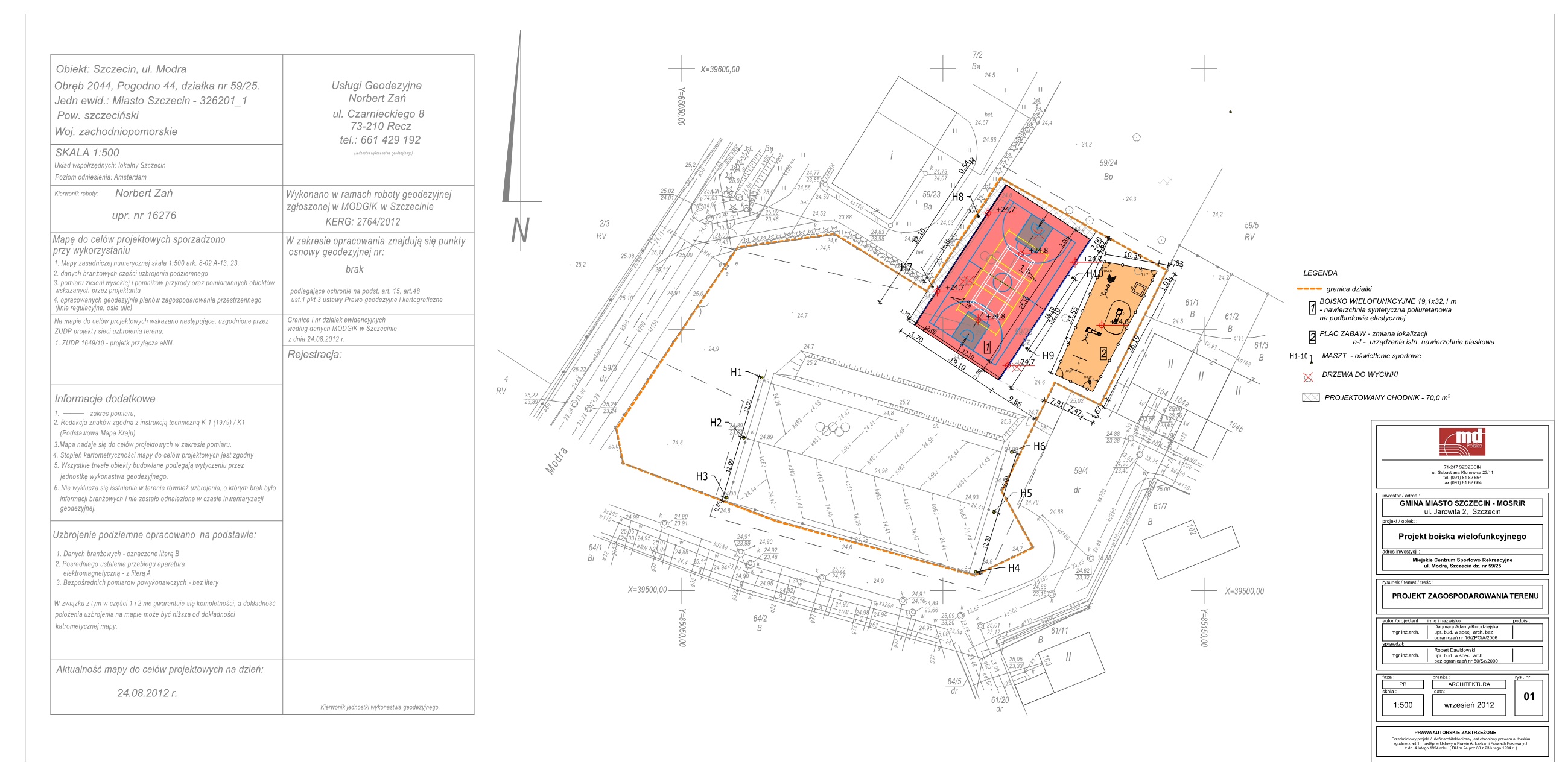
W ubiegłym tygodniu Miejski Ośrodek Sportu Rekreacji i Rehabilitacji w Szczecinie ogłosił zwycięzcę przetargu na budowę boiska wielofunkcyjnego do koszykówki, siatkówki i badmintona wraz z montażem oświetlenia na terenie Centrum Sportowo-Rekreacyjnego przy ul. Modrej.

Za najkorzystniejszą uznano ofertę złożoną przez firmę „KS” Usługi Ogólnobudowlane Koza Szymon z Gryfina. Do przetargu stanęły ponadto:
- Przedsiębiorstwo Budowlane ISOBAU-POLSKA Jarosław Stacherzak ze Szczecina – uzyskując 96,55 pkt.
- Sportsystem Sp. z o.o. ze Szczecina – 86,14 pkt.
- ELBUD s.c. Jarosław Sajewicz, Elżbieta Tomasiak ze Szczecina – 67,34 pkt.

W ramach inwestycji wykonane zostaną:
- podbudowa boiska wielofunkcyjnego wraz z drenażem i odwodnieniem liniowym,
- niezbędne wycinki drzew i krzewów,
- przeniesienie placu zabaw,
- kompletne oświetlenie istniejącego boiska piłkarskiego i nowobudowanego boiska wielofunkcyjnego,
- zagospodarowanie terenu poprzez wykonanie chodników i trawników.

Planowane boisko wielofunkcyjne będzie mieć wymiary 19,1x32,1 m (613,11 m2). Projekt przewiduje nawierzchnię syntetyczną poliuretanową gr. 13 mm, która charakteryzuje się wysokim stopniem elastyczności i sprężystości, co zapewni znakomite pochłanianie energii udarowej, chroniąc tym samym narażone na kontuzje stawy, kolana i łokcie grających. Nawierzchnia ta jest przepuszczalna dla wody, i znajduje zastosowanie przy budowie boisk wielofunkcyjnych, szkolnych czy placów rekreacji ruchowej.

Był to już drugi przetarg na rozbudowę Centrum Sportowo-Rekreacyjnego. Do pierwszego, ogłoszonego w październiku ub.r. i okrojonego do I etapu, stanęła tylko 1 firma, która wykonanie robót wyceniła na większą kwotę niż zarezerwowało na to miasto.

Zdjęcia

Istniejące boisko do piłki nożnej

Projekt zagospodarowania terenu

« wróć

Znajdź nas na Facebooku

Siedziba Rady Osiedla

ul. Klonowica 1a
71-241 Szczecin

Telefon/fax

(91) 486-28-09
(czynny całą dobę)

» więcej

Copyright © 2010-2026 | Polityka prywatności

Strona wykorzystuje pliki cookies do przechowywania informacji na Twoim komputerze. Korzystając ze strony wyrażasz zgodę na używanie plików cookie, zgodnie z aktualnymi ustawieniami przeglądarki.
Jeśli nie chcesz, by pliki cookies były zapisywane w pamięci urządzenia, zmień ustawienia swojej przeglądarki. Więcej informacji w Polityce prywatności. OK, rozumiem