Rada Osiedla Krzekowo-Bezrzecze

RSS

Informacje bieżące

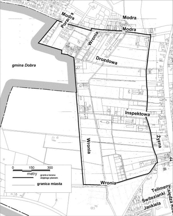
Ponowne wyłożenie projektu MPZP "Krzekowo-Inspektowa"

Dodano: 29.07.2014

Informujemy, iż ponownie został wyłożony do publicznego wglądu projekt miejscowego planu zagospodarowania przestrzennego „Krzekowo - Inspektowa” wraz z prognozą oddziaływania na środowisko.

Projekt dostępny będzie w dniach od 28 lipca 2014 r. do 19 sierpnia 2014 r. w siedzibie Biura Planowania Przestrzennego Miasta (ul. Szymanowskiego 2, 71-416 Szczecin), pokój nr 207, w godzinach od 8:00 do 15:00.

Przedmiotem planu są tereny zabudowy mieszkaniowej jednorodzinnej z dopuszczeniem usług wbudowanych, tereny usług, tereny zieleni urządzonej, teren istniejącej zabudowy mieszkaniowej wielorodzinnej z dopuszczeniem usług wbudowanych oraz system infrastruktury technicznej i układ komunikacyjny.

Dyskusja publiczna nad przyjętymi w projekcie planu miejscowego rozwiązaniami odbędzie się w dniu 6 sierpnia 2014 r. o godzinie 13:00 w siedzibie Biura Planowania Przestrzennego Miasta w Sali P04 (ul. Szymanowskiego 2 w Szczecinie).

Uwagi należy składać na piśmie do Prezydenta Miasta Szczecin z podaniem imienia i nazwiska lub nazwy jednostki organizacyjnej i adresu, oznaczenia nieruchomości, której uwaga dotyczy, w nieprzekraczalnym terminie do dnia 2 września 2014 r.

Załączniki
39.89 KB
165.36 KB
Zdjęcia

« wróć

Znajdź nas na Facebooku

Siedziba Rady Osiedla

ul. Klonowica 1a
71-241 Szczecin

Telefon/fax

(91) 486-28-09
(czynny całą dobę)

» więcej

Copyright © 2010-2026 | Polityka prywatności

Strona wykorzystuje pliki cookies do przechowywania informacji na Twoim komputerze. Korzystając ze strony wyrażasz zgodę na używanie plików cookie, zgodnie z aktualnymi ustawieniami przeglądarki.
Jeśli nie chcesz, by pliki cookies były zapisywane w pamięci urządzenia, zmień ustawienia swojej przeglądarki. Więcej informacji w Polityce prywatności. OK, rozumiem